Busajo Campus/
Studio Benaim
Project Details
Location(City/Country):
Soddo / EthiopiaTipology:
EducationalYear (Design/Construction):
- / 2020Area (Net/Gross):
- / 4300 m2Operational Carbon emissions (B6) kgCO2e/m2/y:
-Embodied Carbon emissions (A1-A3) kgCO2e/m2:
-- All the facades of the buildings were provided with a continuous “filter-device”, a sort of covered porch shielded from the outside by eucalyptus wood panels, structured to form sunscreen grids.
- The overhang depth of the roofs and balconies helps create constant shading to the facades, generating, together with the sunscreen panels, a real passive cooling system for the buildings.
- The project makes extensive use of local materials: eucalyptus wood, a national Ethiopian tree, used from the construction phase for the scaffolding, and a local stone used for the courtyard’s flooring
- The eucalyptus was then used for all the truss structures supporting the roofs, for all the solar screens protecting the facades, for the railings of the galleries.
- The natural red earth present in the area was used for the coloring of the concrete floors.
- The campus is based on a principle of maximum self-sufficiency, containing spaces dedicated to vegetable gardens and animal husbandry
- The Campus has been equipped with an autonomous well, which supplies drinking water also for people out from the campus.
- The rainwater coming from the roofs has been regulated so as to be able to irrigate
Project description as provided by the Architects:
Busajo Campus is a facility dedicated to local street children, who are hosted for a specific period of time, during which they are helped to rebuild their lives and find respect for themselves and others.
The project has been commissioned from Busajo Onlus, a nonprofit organization with social purposes based in Florence Italy. AeI progetti, an engineering firm based in Florence, was the structures consultant, while the general contractor has been a local company called “Tadesse Fikadu”.
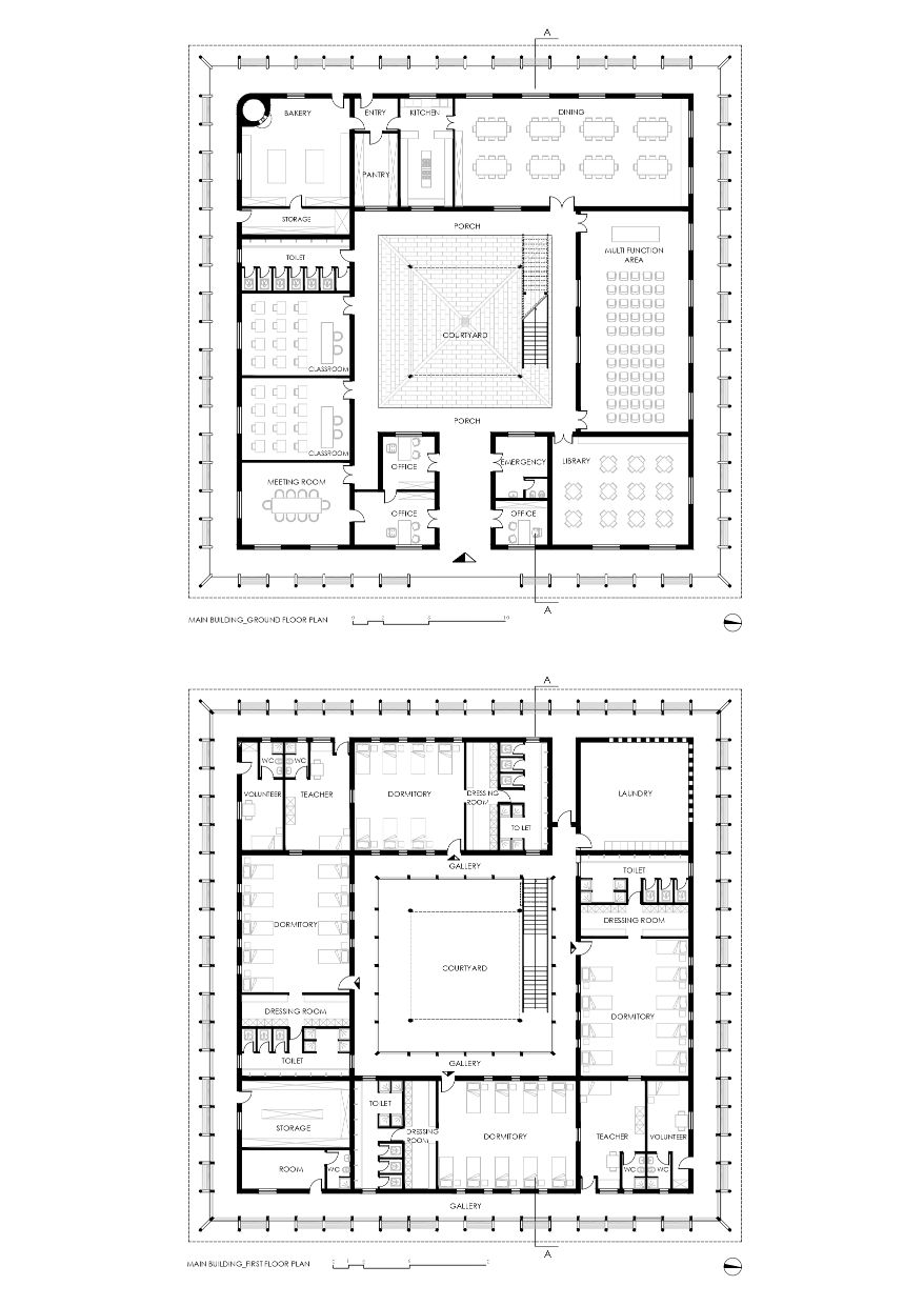
The Campus provides spaces for living, teaching, professional training, sports and leisure activities. These spaces are structured in the form of a village on an area of 33.500 square meters.
The main cultural challenge for the project was creating a space able to be accepted as familiar from the local children. The Campus architectural language uses the same vocabulary’s elements of the local spontaneous way of building, but reassembled in order to avoid the chaos and dispersion typical of the Ethiopian suburbs. The attention to local visual habits, materials and colors has been from the beginning the main tool to assure to the children a sense of belonging to the place.
The challenge coming from the site climate was the necessity to provide protection from heat and rains.
Therefore, all the facades of the buildings were provided with a continuous “filter-device”, a sort of covered porch shielded from the outside by eucalyptus wood panels, structured to form sunscreen grids. The overhang depth of the roofs and balconies helps create constant shading to the facades, generating, together with the sunscreen panels, a real passive cooling system for the buildings. The same “filter-space” acts as a porch, protecting from bad weather and allowing children to continue their outdoor activities, even in the rainy season.
For the main buildings the Mediterranean courtyard type was chosen, in order to enhance community gatherings in a protected space – not only from the elements but also from the street.
The internal courtyards are important spaces for community gatherings, where children can meet, learn and play in a safe and secure environment.
The project makes extensive use of local materials: eucalyptus wood, a national Ethiopian tree, used from the construction phase for the scaffolding, and a local stone used for the courtyard’s flooring. The eucalyptus was then used for all the truss structures supporting the roofs, for all the solar screens protecting the facades, for the railings of the galleries.
The natural red earth present in the area was used for the coloring of the concrete floors.
The campus is based on a principle of maximum self-sufficiency, containing spaces dedicated to vegetable gardens and animal husbandry. Children are involved in the management of these activities for educational purposes.
The Campus has been equipped with an autonomous well, which supplies drinking water also for people out from the campus.
The rainwater coming from the roofs has been regulated so as to be able to irrigate
Team Architects: André Benaim, Fabio Azzato e Stefano Combet, with the collaboration of Danilo Gentili
Photo Credits: Pietro Savorelli




