Le Potager Extraordinaire/
Agence Guinée*Potin Architectes
Project Details
Location(City/Country):
La Roche-sur-Yon (85) / FranceTipology:
CulturalYear (Design/Construction):
- / 2023Area (Net/Gross):
- / 1150 m2Operational Carbon emissions (B6) kgCO2e/m2/y:
-Embodied Carbon emissions (A1-A3) kgCO2e/m2:
-- Use of natural and local materials throughout: Wood, thatch, and rammed earth.
- Passive Design strategies to catch solar heat in winter and protect from direct sunshine in summer.
- Dry construction, with rational and efficient timber structure.
- Natural Ventilation Strategy.
- Contribution to biodiversity and education.
The project aims to transform the Beautour Center, Biodiversity Discovery Center, a project opened in 2013, and develop it into an educational and leisure park on the theme of plants, the opening of which is planned for summer 2023:
“The Extraordinary Vegetable Garden”
This project seeks a balance between measured actions preserving in part what has been put in place since 2013 and 2014, and more marked actions with the installation of an educational and operating farm, operating greenhouses, a course in the collections of the Extraordinary Vegetable Garden on more than 7 hectares.
SITE-RELATED CONSTRAINTS
This is indeed a project specific to the Beautour site, its development, dictated by the consideration of biodiversity, topography and quality of place.
The inclusion of the route on the site, resulting from the programming of the Extraordinary Vegetable Garden, arises from this logic. By taking into account takes the sunshine requirements inherent to market gardening, the route takes advantage of the characteristics of the place and at best the pre-existing balances. The challenge of the project is to transport visitors into a combined immersion of the collections of the Extraordinary Vegetable Garden and the richness of the site which welcomes them.
The question of the impact of the passage of visitors on the ecological environments of the site is at the center of the reflection regarding the layout of the different spaces.
By using the ERC method (avoid, reduce, compensate), the project strives to limit heavy interventions as much as possible.
Wetland, but also to undertake compensation work, allowing the ecological enrichment of certain spaces (implementation in defenses, creation of optimal conditions…).
The “Extraordinary Vegetable Garden” park has a fun and educational vocation, presenting a vast collection of plants consumables, exhibited in different thematic gardens. A guided tour is offered to visitors, from the thatched building existing or exhibition rooms retrace the life of Georges Durand (Vendean naturalist), up to the park laid out in plots themed. In addition to this collection park, the site includes a plot of land allowing market gardening production.
Biological. The Extraordinary Vegetable Garden has for years enabled the conservation and preservation of rare species, notably Lagenaria, a plant belonging to the Cucurbitaceae family, their collection of which remains one of the only ones in France.
BUILDINGS SERVING THE PARK
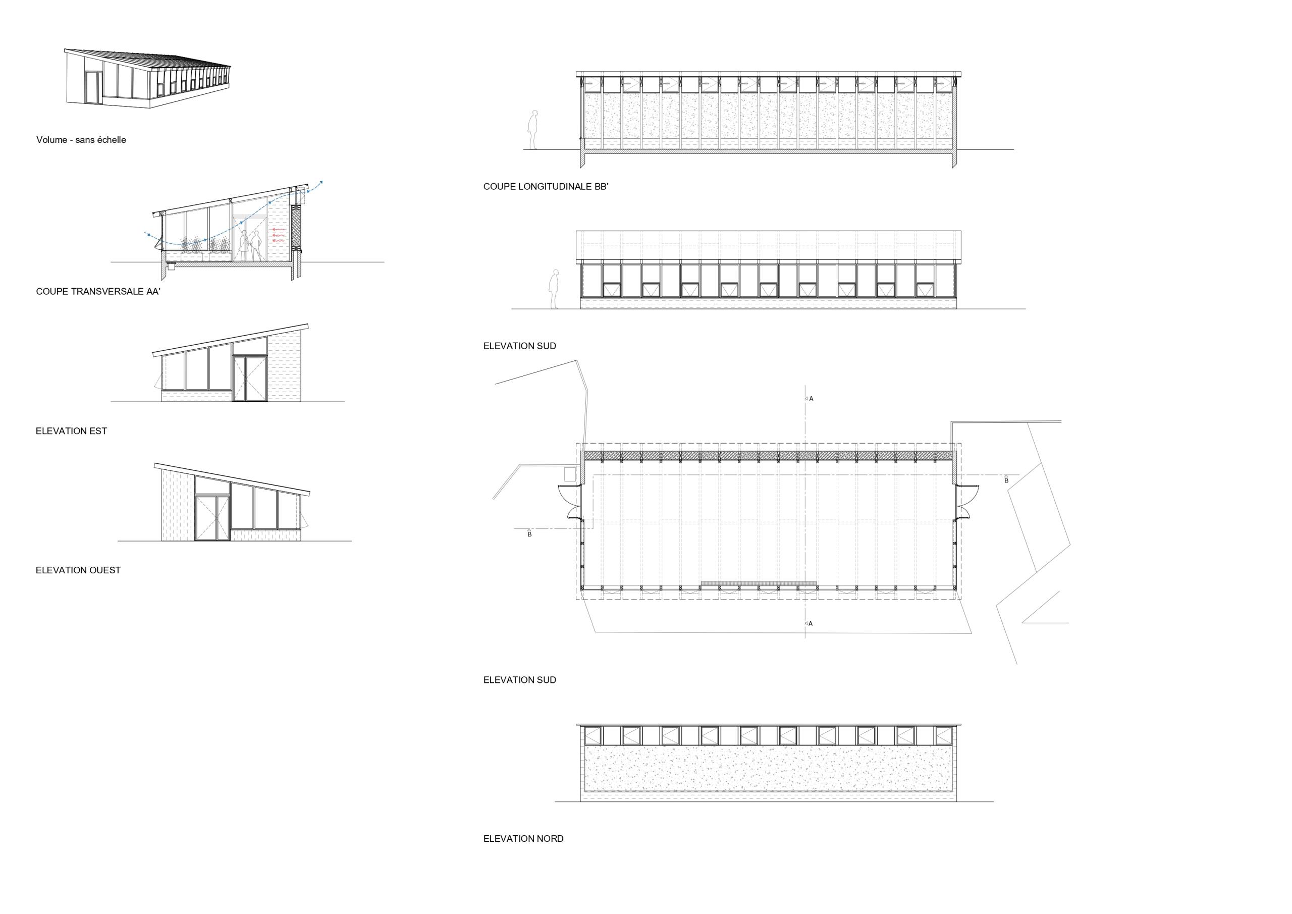
In addition to the existing building consisting of the Maison de Georges Durand and its thatched extension (2013), the new park houses a operating farm, market garden greenhouses, a mediation building, a so-called ‘bioclimatic’ greenhouse.
The architectural approach to redevelopment of the premises applies bioclimatic principles:
- Low impact on the landscape through materiality (thatch, wood, raw earth),
- Passive exploitation of winter sun energy and summer protection,
- Use of a “dry” sector (frame/frame/wooden floor) ensuring a clean construction site and preservation of the site,
The buildings created are therefore made of wooden frames and frames, wrapped in cladding tinted in falun black and translucent cladding, taking up the codes of rural architecture and reinterpreting them in a contemporary way.
The so-called ‘ecological’ greenhouse is made of straw wood frame and raw earth coating, oriented North/South, in order to take advantage of solar input and simple management of natural ventilation using hydraulically opening frames.
- PROJECT NAME: “Le POTAGER EXTRAORDINAIRE
- PROGRAMME: Site development and extension of the Beautour Biodiversity Discovery Centre
- PROJECT MANAGEMENT: La Roche-sur-Yon Agglomération
- OPERATOR: Le potager Extraordinaire (Estille group)
- MANAGING LANDSCAPER: Guillaume Sevin Paysages
- ASSOCIATE ARCHITECT: Agence Guinée*Potin Architectes / project manager: Solen Nico
- BET: Oteis (TCE)
- CONTROL BUREAU: Qualiconsult
- CSPS: ATAE
- COST OF WORKS EXCLUDING TAX: €2,800,000
- CONTRACTORS: Charier TP – Earthworks and primary sprinkler system
- PHOTOGRAPHER: Stéphane Chalmeau




